TOP WOHNGEFÜHL • 4-Zimmer • Bad mit Wanne & Dusche • große Portaltüren • unbedingt Anschauen ! ID: 3130














Details
- Keller
Objektbeschreibung:
Ausstattung:
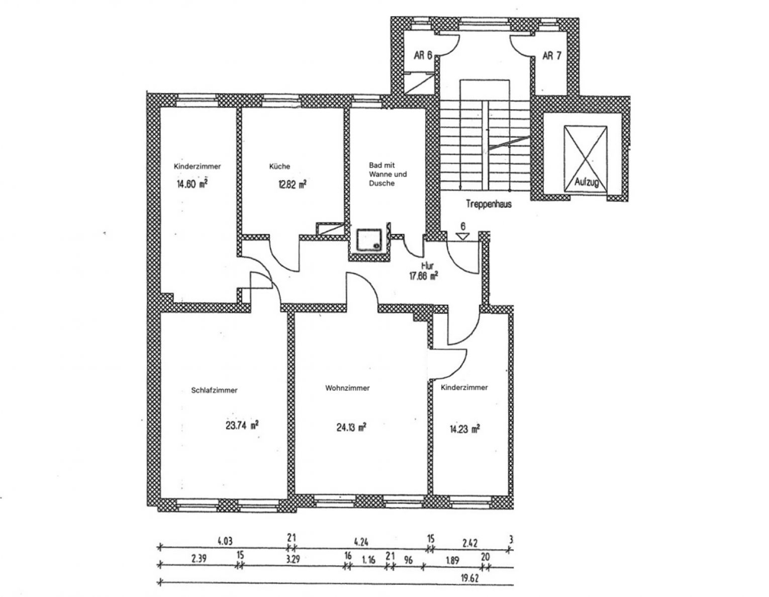
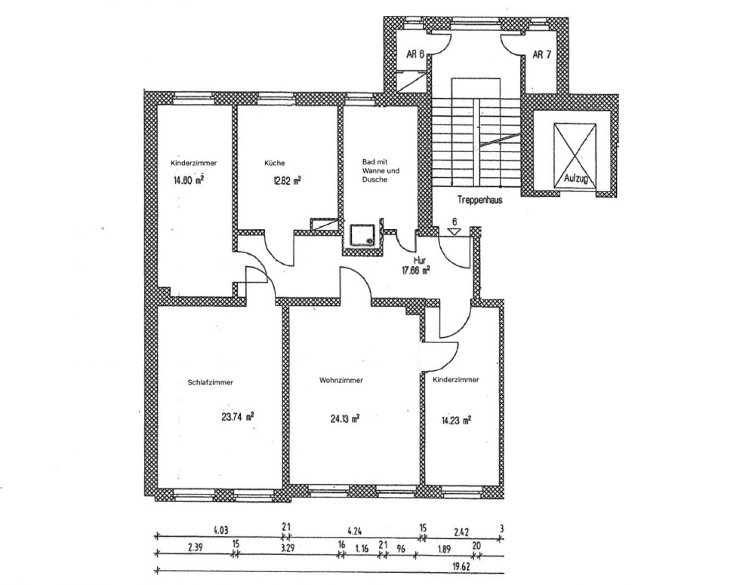
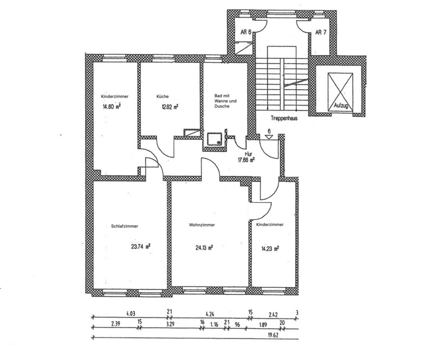
+ großzügiger Eingangsbereich
+ Tageslichtbad mit Wanne & Dusche
+ helles geräumiges Wohnzimmer mit Stuck-Decke
+ große Küche
+ Schlafzimmer
+ Kinderzimmer 1
+ Kinderzimmer 2
weitere Ausstattungsmerkmale:
+ Personenaufzug (Lift)
+ Kellerabteil
+ Hausreinigung und Winterdienst inklusive
+ Medien: Kabelfernsehen, Telefonanschluss
+ der Hinterhof dient der gemeinsamen Nutzung
+ Stellplätze nach Verfügbarkeit 40,00 €/Monat
+ Waschkeller / Trockenraum
Lage:
+ großes geschlossenes Viertel, dass zwischen der Gründerzeit und dem ersten Weltkrieg entstand
+ ,,Stadion an der Gellertstraße" welches 2016 umfassend saniert wurde, befindet sich diesem Stadtteil
+ sehr gute Anbindung an den öffentlichen Nahverkehr sowie den Hauptbahnhof
+ Einkaufsmöglichkeiten findet Ihr in der näheren Umgebung und sind gut zu Fuß zu erreichen
Sonstige Angaben:
Lächelst Du immer noch?
Dann freuen wir uns, zeitnah mit Dir einen Besichtigungstermin zu vereinbaren.
Für eine schnelle und unkomplizierte Terminvereinbarung, bitten wir Dich uns eine Telefonnummer mitzuteilen.
Anfragen mit Telefonnummer können von uns schneller bearbeitet werden!
Ansprechpartner : Frank Lohse
Weitere interessante Mietwohnungen von immosmile, Immobilienmakler in Chemnitz, findest Du auf www.immosmile.me
Energiepassangaben
Das Team der immosmile GmbH hat es sich zur Aufgabe gemacht, nicht nur von Service, Qualität und Kompetenz zu reden. Es ist unser Anspruch, unsere Arbeit genau davon leiten zu lassen. Wir bieten unseren Kunden und Auftraggebern qualitativ hochwertige Leistungen, die nur mit fachlicher Kompetenz und hoher Leistungsbereitschaft erreicht werden können. Dies ist unser persönliches Verständnis von Service, das wir in anderen Lebensbereichen selbst täglich erwarten.
Service ist es gleichzeitig, kompetente Auskünfte geben zu können, Fragen zu beantworten sowie über aktuelle und interessante Themen zu informieren. Wir beantworten Ihre Fragen gern. Rufen Sie uns dazu an oder schreiben Sie uns, wenn Sie über Ihren aktuellen Auftragsstand informiert werden möchten oder eine Frage zur derzeitigen Situation auf dem Wohnungsmarkt in Chemnitz haben.
Erste Informationen zu speziellen Themen rund um die Immobilie in Chemnitz oder allgemeinen Marktentwicklungen bzw. Gerichtsurteilen lesen Sie bereits in unserem Blog. Um hier stets aktuell zu bleiben und die Qualität auch dieser Arbeit hochzuhalten, freuen wir uns über Anregungen und Fragen unserer Kunden und Auftraggeber, die wir auf dieser Seite gern ausführlich thematisieren.