2 Zimmer • Ruhige Lage • moderner Grundriss • Balkon • neu • Einbauküche • jetzt Termin vereinbaren ID: 1901
Adresse
Dokumente
Details
Objektnummer:
1901
Objekttyp:
Wohnung
Wohnfläche:
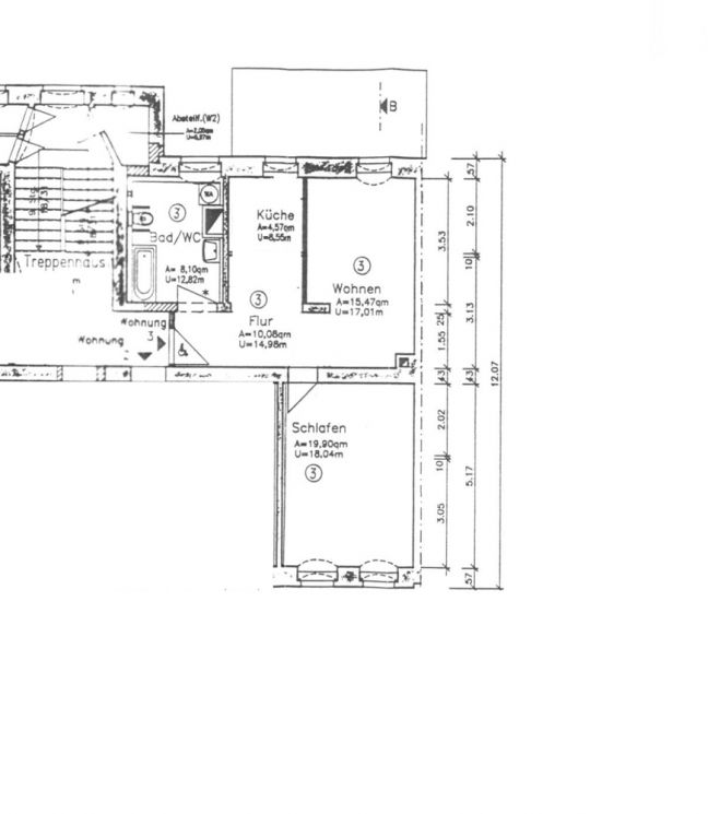
59,04 m²
Anzahl Zimmer:
2
Etage:
1
Ausstattung:
- Balkon / Terrasse
Objektbeschreibung:
In einem repräsentativen Mehrfamilienhaus, findest Du diese modern geschnittene 2- Raum Wohnung, mit offenem Wohn-und Essbereich, Tageslichtbad und schönen Sonnenbalkon.....
Aktuell ist die Wohnung noch bewohnt, Besichtigungen sind nach Absprache dennoch möglich !
Ausstattung:
+ Bodenbeläge - Schicker Laminat- und Fliesenboden
+ Flur mit Zugang zu allen weiteren Räumlichkeiten
+ keine Durchgangszimmer
+ Küche mit Fliesenspiegel und Fenster
=> die Küche kann gern gegen eine Ablöse von der Vormieterin übernommen werden
+ offener Wohn-und Essbereich mit Zugang zum Balkon
+ schöner Balkon, welcher in den Innenhof ausgerichtet ist
+ geräumiges Tageslichtbad mit Wanne und Waschmaschinenanschluss
+ helles Schlafzimmer
+ Abstellraum auf halber Treppe
weiterhin "gehört zur Wohnung"
+ Aufzug
+ barrierefrei
+ Keller
+ Kabelanschluss
+ Hinterhof steht zur gemeinsamen Nutzung zur Verfügung
+ Hausreinigung inklusive
+ Flur mit Zugang zu allen weiteren Räumlichkeiten
+ keine Durchgangszimmer
+ Küche mit Fliesenspiegel und Fenster
=> die Küche kann gern gegen eine Ablöse von der Vormieterin übernommen werden
+ offener Wohn-und Essbereich mit Zugang zum Balkon
+ schöner Balkon, welcher in den Innenhof ausgerichtet ist
+ geräumiges Tageslichtbad mit Wanne und Waschmaschinenanschluss
+ helles Schlafzimmer
+ Abstellraum auf halber Treppe
weiterhin "gehört zur Wohnung"
+ Aufzug
+ barrierefrei
+ Keller
+ Kabelanschluss
+ Hinterhof steht zur gemeinsamen Nutzung zur Verfügung
+ Hausreinigung inklusive
Lage:
HILBERSDORF
+ am Rande des Zeisigwaldes gelegen
+ Einkaufsmöglichkeiten ( z.B. Sachsenallee ) sowie das Stadtzentrum sind in wenigen Minuten gut zu erreichen
+ der Chemnitzer Hauptbahnhof ist mit der Regionalbahn ebenfalls in wenigen Minuten zu erreichen
+ ein Katzensprung entfernt, bietet der Zeisigwald vielfältige Möglichkeiten sich sportlich zu betätigen
+ am Rande des Zeisigwaldes gelegen
+ Einkaufsmöglichkeiten ( z.B. Sachsenallee ) sowie das Stadtzentrum sind in wenigen Minuten gut zu erreichen
+ der Chemnitzer Hauptbahnhof ist mit der Regionalbahn ebenfalls in wenigen Minuten zu erreichen
+ ein Katzensprung entfernt, bietet der Zeisigwald vielfältige Möglichkeiten sich sportlich zu betätigen
Sonstige Angaben:
Hast du Dir einen ersten Eindruck von der Wohnung anhand der Bilder und Fakten machen können?
Lächelst Du immer noch?
Dann freuen wir uns, zeitnah mit Dir einen Besichtigungstermin zu vereinbaren.
Für eine schnelle und unkomplizierte Terminvereinbarung, bitten wir Dich uns eine Telefonnummer mitzuteilen.
Anfragen mit Telefonnummer können von uns schneller bearbeitet werden!
Ansprechpartner : Vanessa Petzold & Nora Schuppenhauer
Weitere interessante Wohnungen zum mieten von immosmile, Immobilienmakler in Chemnitz, findest Du auf www.immosmile.me
Lächelst Du immer noch?
Dann freuen wir uns, zeitnah mit Dir einen Besichtigungstermin zu vereinbaren.
Für eine schnelle und unkomplizierte Terminvereinbarung, bitten wir Dich uns eine Telefonnummer mitzuteilen.
Anfragen mit Telefonnummer können von uns schneller bearbeitet werden!
Ansprechpartner : Vanessa Petzold & Nora Schuppenhauer
Weitere interessante Wohnungen zum mieten von immosmile, Immobilienmakler in Chemnitz, findest Du auf www.immosmile.me
Ihr Ansprechpartner:
immosmile.me
Telefon:
0371 444 789 75
E-Mail:
hello@immosmile.me