3-Raum • nahe Uni • Balkon • offene Küche • saniert • Haus mit Lift • hell und freundlich • TOP! ID: 4628
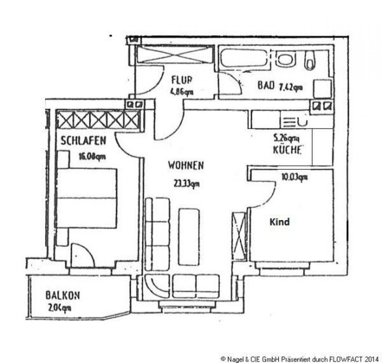
Grundriss
Adresse
Dokumente
Details
Objektnummer:
4628
Objekttyp:
Wohnung
Wohnfläche:
67,00 m²
Anzahl Zimmer:
3
Etage:
1
Ausstattung:
- Keller
- Balkon / Terrasse
Objektbeschreibung:
Diese schön geschnittene 3-Raum Wohnung mit Balkon findet Ihr in der 1.Etage eines attraktiven Stadthaus in Uni Nähe. Das Haus verfügt über einen Aufzug.
Die Wohnung ist derzeit noch vermietet, kann aber bereits in Absprache besichtigt werden!
Ausstattung:
+ Bodenbeläge: Laminat
+ Flur
+ innenliegendes Bad mit Wanne & Waschmaschinenanschluss
+ helles großzügig geschnittenes Wohnzimmer
+ offene Küche mit Fliesenspiegel eingebaut werden
+ Schlafzimmer
+ Kinder- oder Arbeitszimmer
weiterhin "gehört zur Wohnung"
+ Kellerabteil
+ Hausreinigung und Winterdienst inklusive
+ Medien: Kabelfernsehen, Telefonanschluss, Glasfaseranschluss
+ Trockenraum
+ Lift
+ Flur
+ innenliegendes Bad mit Wanne & Waschmaschinenanschluss
+ helles großzügig geschnittenes Wohnzimmer
+ offene Küche mit Fliesenspiegel eingebaut werden
+ Schlafzimmer
+ Kinder- oder Arbeitszimmer
weiterhin "gehört zur Wohnung"
+ Kellerabteil
+ Hausreinigung und Winterdienst inklusive
+ Medien: Kabelfernsehen, Telefonanschluss, Glasfaseranschluss
+ Trockenraum
+ Lift
Lage:
BERNSDORF
+ beliebter Stadtteil für Studenten
+ die Chemnitzer Universität befindet sich in unmittelbarer Umgebung
+ Geschäfte des täglichen Bedarfs, Apotheken, Banken sowie Einkaufsmöglichkeiten sind gegeben
+ das Stadtzentrum und die öffentlichen Verkehrsmittel sind in wenigen Minuten gut zu erreichen
+ über die Reichenhainer Straße und anschließend über den Südring gelangt man zügig zur A72
+ beliebter Stadtteil für Studenten
+ die Chemnitzer Universität befindet sich in unmittelbarer Umgebung
+ Geschäfte des täglichen Bedarfs, Apotheken, Banken sowie Einkaufsmöglichkeiten sind gegeben
+ das Stadtzentrum und die öffentlichen Verkehrsmittel sind in wenigen Minuten gut zu erreichen
+ über die Reichenhainer Straße und anschließend über den Südring gelangt man zügig zur A72
Sonstige Angaben:
Hast du Dir einen ersten Eindruck von der Wohnung anhand der Bilder und Fakten machen können?
Lächelst Du immer noch?
Dann freuen wir uns, zeitnah mit Dir einen Besichtigungstermin zu vereinbaren.
Für eine schnelle und unkomplizierte Terminvereinbarung, bitten wir Dich uns eine Telefonnummer mitzuteilen.
Anfragen mit Telefonnummer können von uns schneller bearbeitet werden!
Ansprechpartner : Frank Lohse
Du suchst weitere Wohnungen zur Miete? Schau gern auf unserer Homepage www.immosmile.me vorbei. Dort ist bestimmt auch für Dich die passende Mietwohnung dabei - immosmile, Dein Immobilienmakler in Chemnitz.
Lächelst Du immer noch?
Dann freuen wir uns, zeitnah mit Dir einen Besichtigungstermin zu vereinbaren.
Für eine schnelle und unkomplizierte Terminvereinbarung, bitten wir Dich uns eine Telefonnummer mitzuteilen.
Anfragen mit Telefonnummer können von uns schneller bearbeitet werden!
Ansprechpartner : Frank Lohse
Du suchst weitere Wohnungen zur Miete? Schau gern auf unserer Homepage www.immosmile.me vorbei. Dort ist bestimmt auch für Dich die passende Mietwohnung dabei - immosmile, Dein Immobilienmakler in Chemnitz.
Ihr Ansprechpartner:
immosmile.me
Telefon:
0371 444 789 75
E-Mail:
hello@immosmile.me