4 Zimmer • im Dachgeschoss • mit Balkon • auf dem Kaßberg • in Chemnitz • ideale Altersvorsorge ID: 3326
Details
Objektnummer:
3326
Objekttyp:
Wohnung
Wohnfläche:
115,04 m²
Anzahl Zimmer:
4
Ausstattung:
- Balkon / Terrasse
Objektbeschreibung:
Mitten auf dem unseren schönen Chemnitzer Kaßberg finden Sie, in einem sanierten Mehrfamilienhaus, diese wunderschöne und geräumige 4-Zimmer-Wohnung mit jeder Menge Vorzügen!
Über das repräsentative Treppenhaus gelangen Sie im Dachgeschoss, linker Hand, in unsere Traum-Immobilie ...
Mehr Details aus der Beschreibung, viele Bilder und Zahlen finden Sie in unserem Verkaufsexposé, welches wir Ihnen auf Anfrage gern übersenden!
Ausstattung:
+ Bodenbeläge - Laminat- und Fliesenboden
+ Flur / Eingangsbereich mit Zugang zu allen weiteren Räumen
=> keine Durchgangszimmer
+ Gäste-WC
+ geräumige Essküche mit praktischen Abstellraum und Zugang zum Balkon
+ Abstellraum
+ Balkon mit Ausrichtung in den Innenhof (West-Ausrichtung)
+ Schlafzimmer
+ zwei weitere Zimmer, welche sich zur individuellen Nutzung und Gestaltung eignen
+ Wohnzimmer
+ innenliegendes Bad mit Wanne und Waschmaschinenanschluss
weiterhin gehört „zur Wohnung“
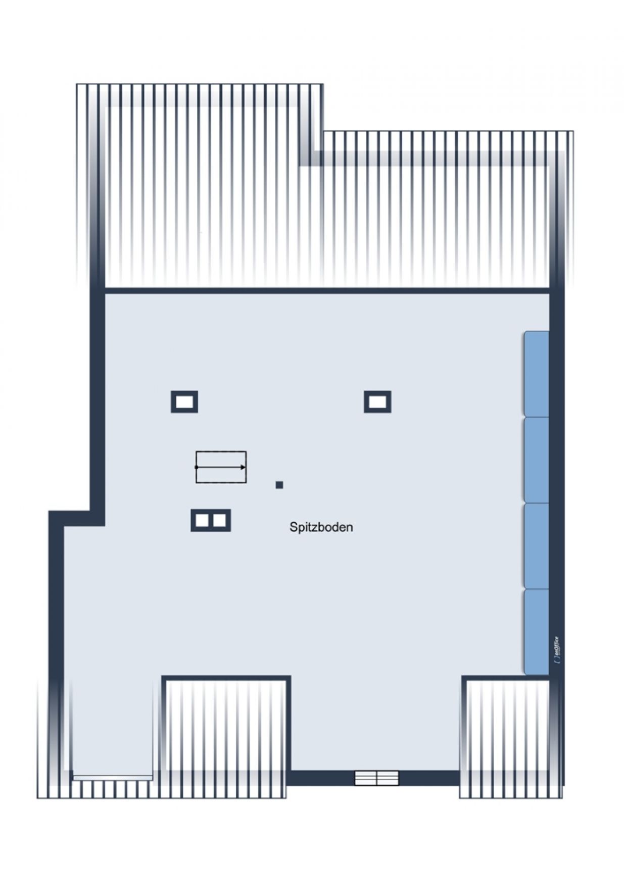
+ XXL-Spitzboden, welcher sich nahezu auch nochmals über die komplette Wohnung erstreckt
=> hier kann in der Zukunft ggf. noch ein Ausbau / unmittelbare Integration in die Wohnung erfolgen!
+ Hinterhof kann von allen Bewohnern gemeinsam genutzt werden
+ Flur / Eingangsbereich mit Zugang zu allen weiteren Räumen
=> keine Durchgangszimmer
+ Gäste-WC
+ geräumige Essküche mit praktischen Abstellraum und Zugang zum Balkon
+ Abstellraum
+ Balkon mit Ausrichtung in den Innenhof (West-Ausrichtung)
+ Schlafzimmer
+ zwei weitere Zimmer, welche sich zur individuellen Nutzung und Gestaltung eignen
+ Wohnzimmer
+ innenliegendes Bad mit Wanne und Waschmaschinenanschluss
weiterhin gehört „zur Wohnung“
+ XXL-Spitzboden, welcher sich nahezu auch nochmals über die komplette Wohnung erstreckt
=> hier kann in der Zukunft ggf. noch ein Ausbau / unmittelbare Integration in die Wohnung erfolgen!
+ Hinterhof kann von allen Bewohnern gemeinsam genutzt werden
Lage:
KAßBERG
+ beliebtester und schönster Stadtteil von Chemnitz
+ größtes zusammenhängendes Areal an Jugendstilgebäuden
+ sehr gute Verkehrsanbindung ans Stadtzentrum sowie alle umliegenden Richtungen
+ optimale Anbindung an den öffentlichen Nahverkehr
+ das direkte "Innenstadtleben" ist bequem innerhalb weniger "Geh-Minuten" zu erreichen
+ zahlreiche Einkaufsmöglichkeiten in unmittelbarer Nähe
+ öffentliche Einrichtungen / Ärzte / Banken / Apotheken vorhanden
+ kleine gemütliche Cafés und abwechslungsreiche gastronomische Einrichtungen in nächster Nähe
+ beliebtester und schönster Stadtteil von Chemnitz
+ größtes zusammenhängendes Areal an Jugendstilgebäuden
+ sehr gute Verkehrsanbindung ans Stadtzentrum sowie alle umliegenden Richtungen
+ optimale Anbindung an den öffentlichen Nahverkehr
+ das direkte "Innenstadtleben" ist bequem innerhalb weniger "Geh-Minuten" zu erreichen
+ zahlreiche Einkaufsmöglichkeiten in unmittelbarer Nähe
+ öffentliche Einrichtungen / Ärzte / Banken / Apotheken vorhanden
+ kleine gemütliche Cafés und abwechslungsreiche gastronomische Einrichtungen in nächster Nähe
Sonstige Angaben:
Machen Sie sich einen ersten Eindruck und lassen Sie Bilder und Fakten auf sich wirken.
Lächeln Sie immer noch?
Dann lassen Sie sich das Exposé mit ausführlichem Bildmaterial und weitere Unterlagen zusenden.
Im Anschluss vereinbaren wir gern einen Besichtigungstermin.
Wir freuen uns auf Sie!
Bei Abschluss eines Kaufvertrages wird eine Provision in Höhe von 5,95 % , inklusive gesetzlicher MwSt., vom erzielten Kaufpreis fällig.
Da wir Objektangaben nicht selbst ermitteln, übernehmen wir hierfür keine Gewähr.
Eine Weitergabe an Dritte ist an unsere ausdrückliche Zustimmung gebunden und unterbindet nicht unseren Provisionsanspruch bei Zustandekommen eines Vertrages. Alle Gespräche sind über unser Büro zu führen. Bei Zuwiderhandlung behalten wir uns Schadenersatz bis zur Höhe der Provisionsansprüche ausdrücklich vor. Zwischenverkauf ist nicht ausgeschlossen.
Ansprechpartner: Nora Schuppenhauer
Auf der Suche nach anderen Eigentumswohnungen? Weitere attraktive Immobilien zum Kauf finden Sie auf unserer Homepage www.immosmile.me - immosmile, Ihr Immobilienmakler in Chemnitz, lässt auch Ihre Wohnung vor Freude strahlen
Lächeln Sie immer noch?
Dann lassen Sie sich das Exposé mit ausführlichem Bildmaterial und weitere Unterlagen zusenden.
Im Anschluss vereinbaren wir gern einen Besichtigungstermin.
Wir freuen uns auf Sie!
Bei Abschluss eines Kaufvertrages wird eine Provision in Höhe von 5,95 % , inklusive gesetzlicher MwSt., vom erzielten Kaufpreis fällig.
Da wir Objektangaben nicht selbst ermitteln, übernehmen wir hierfür keine Gewähr.
Eine Weitergabe an Dritte ist an unsere ausdrückliche Zustimmung gebunden und unterbindet nicht unseren Provisionsanspruch bei Zustandekommen eines Vertrages. Alle Gespräche sind über unser Büro zu führen. Bei Zuwiderhandlung behalten wir uns Schadenersatz bis zur Höhe der Provisionsansprüche ausdrücklich vor. Zwischenverkauf ist nicht ausgeschlossen.
Ansprechpartner: Nora Schuppenhauer
Auf der Suche nach anderen Eigentumswohnungen? Weitere attraktive Immobilien zum Kauf finden Sie auf unserer Homepage www.immosmile.me - immosmile, Ihr Immobilienmakler in Chemnitz, lässt auch Ihre Wohnung vor Freude strahlen
Ihr Ansprechpartner:
immosmile.me
Telefon:
0371 444 789 75
E-Mail:
hello@immosmile.me