Einfamilienhaus • Oberlungwitz • Maisonette • Einliegerwohnung • Garten • Garage ID: 3309
Details
Objektnummer:
3309
Objekttyp:
Haus
Wohnfläche:
175,00 m²
Grundstücksfläche:
800,00 m²
Anzahl Zimmer:
6
Ausstattung:
- Keller
Objektbeschreibung:
3309 Im Speckgürtel von Chemnitz wohnen oder vermieten ?! Diese Immobilie gibt beides her.
Zum Verkauf steht eine solides Häuschen mit zwei Wohneinheiten verteilt auf drei Etagen.
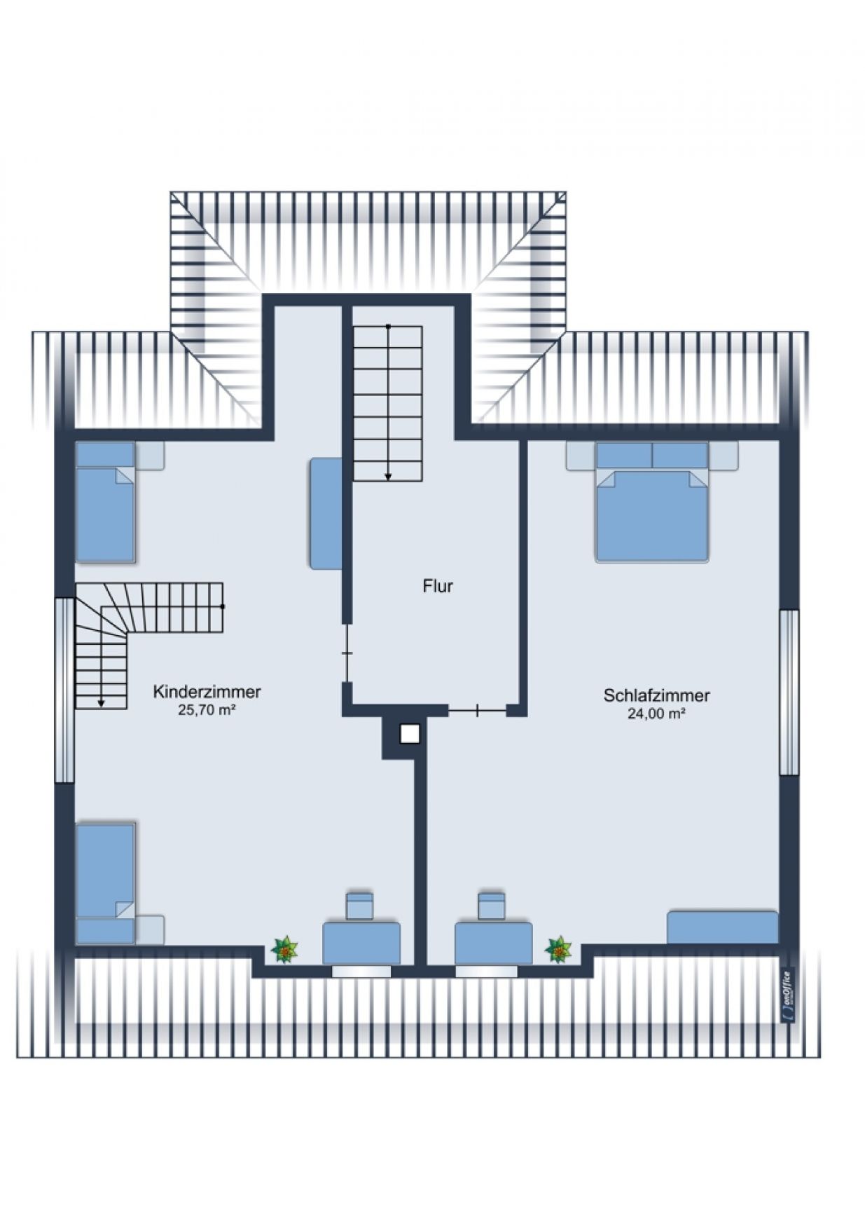
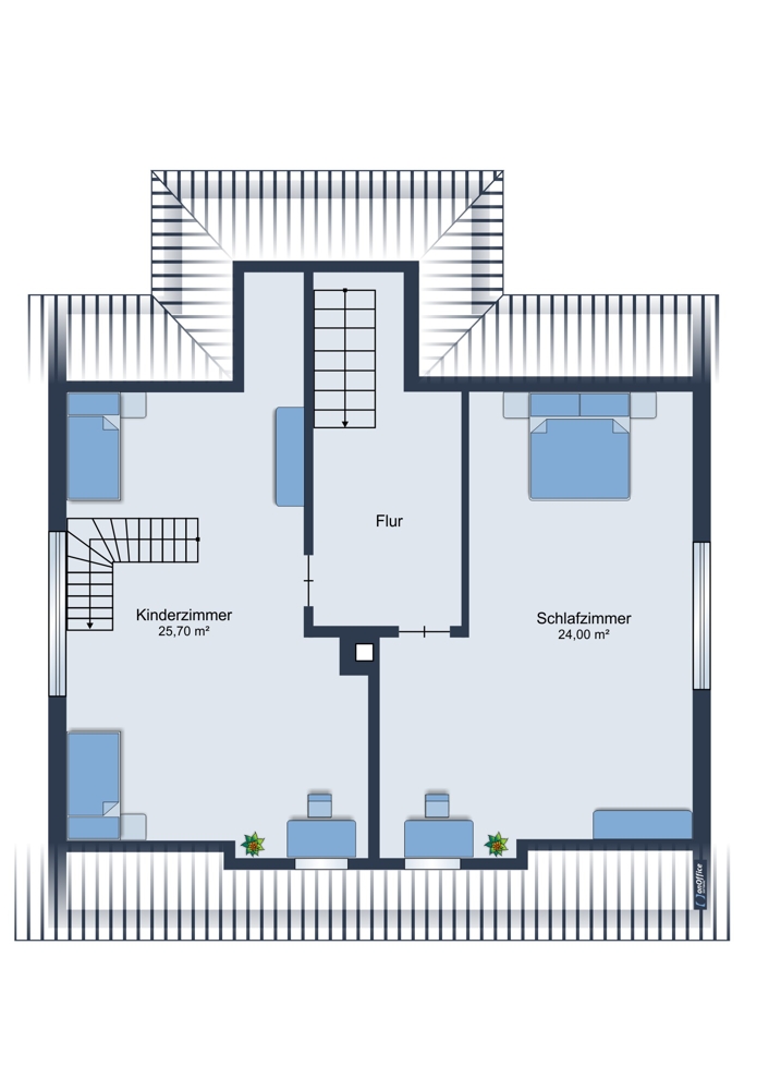
Die aktuell vermietete Erdgeschosswohnung ist mit ihren 3 Zimmern klassisch kompakt gehalten, das Obergeschoss hingegen wurde Maisonette- Wohnung ausgebaut und umfasst 4 üppige Wohnräume. Dazu ein gepflegter Garten, eine Garagen und das alles in deiner äußerst ruhigen und beliebten Wohnsiedlung.
Beide Wohneinheiten bedürfen in Sachen Renovierung einer Generalüberholung, insbesondere bei den Bädern besteht auch Sanierungsbedarf - das Haus an sich steht absolut solide.
Weitere Informationen, Bilder, Grundrisse sowie alle Zahlen finden Sie in unserem Verkaufsexposé, welches wir Ihnen auf Anfrage hin gern übersenden
Ausstattung:
+ klassisches Zwifamilienhaus mit zentralem Treppenaufgang und Kammern auf halber Höhe (frühere Toiletten)
Erdgeschoss:
+ 3 Raum Wohnung im Erdgeschoss
+ aktuell vermietet
+ Bad mit Fenster
+ WM-Anschluss im Abstellraum/Treppenhaus (ehemalige WCs)
Obergeschoss:
+ 4 Raum Maisonette- Wohnung mit großen Wohn/Schlafräumen
+ Bad mit Fenster
+ Standard veraltet
+ separates WC auf halber Treppe
Zum Haus:
+ voll unterkellert inkl. WM-Anschluss und Trockenraum
+ trockengelegt
+ Gas-Zentralheizung
+ großzügiges Gartengrundstück um das Haus herum
+ große, längliche Garage vorhanden
+ vollständig eingezäunt
Erdgeschoss:
+ 3 Raum Wohnung im Erdgeschoss
+ aktuell vermietet
+ Bad mit Fenster
+ WM-Anschluss im Abstellraum/Treppenhaus (ehemalige WCs)
Obergeschoss:
+ 4 Raum Maisonette- Wohnung mit großen Wohn/Schlafräumen
+ Bad mit Fenster
+ Standard veraltet
+ separates WC auf halber Treppe
Zum Haus:
+ voll unterkellert inkl. WM-Anschluss und Trockenraum
+ trockengelegt
+ Gas-Zentralheizung
+ großzügiges Gartengrundstück um das Haus herum
+ große, längliche Garage vorhanden
+ vollständig eingezäunt
Lage:
Oberlungwitz
+ ist eine Kleinstadt in Sachsen mit rund 5.700 Einwohnern, gelegen im Erzgebirgsbecken am Lungwitzbach.
+Historisch bekannt für Strumpf- und Strumpfmaschinenproduktion, bietet die Stadt eine ruhige, bodenständige Atmosphäre.
+ Gute Anbindung über die B 173 und B 180, nächster Bahnhof in Hohenstein-Ernstthal.
+ Oberlungwitz mag klein sein, aber kulturell und freizeitmäßig bietet die Stadt deutlich mehr, als man auf den ersten Blick vermutet:
+ Historie trifft auf aktive Gemeinschaft, Natur auf Motorsport, und Ruhe auf regionale Veranstaltungen, ganz zu schweigen von der ein oder anderen schwer zu empfehlenden Gastronomie und Eisdiele.
+ ist eine Kleinstadt in Sachsen mit rund 5.700 Einwohnern, gelegen im Erzgebirgsbecken am Lungwitzbach.
+Historisch bekannt für Strumpf- und Strumpfmaschinenproduktion, bietet die Stadt eine ruhige, bodenständige Atmosphäre.
+ Gute Anbindung über die B 173 und B 180, nächster Bahnhof in Hohenstein-Ernstthal.
+ Oberlungwitz mag klein sein, aber kulturell und freizeitmäßig bietet die Stadt deutlich mehr, als man auf den ersten Blick vermutet:
+ Historie trifft auf aktive Gemeinschaft, Natur auf Motorsport, und Ruhe auf regionale Veranstaltungen, ganz zu schweigen von der ein oder anderen schwer zu empfehlenden Gastronomie und Eisdiele.
Sonstige Angaben:
Machen Sie sich einen ersten Eindruck und lassen Sie Bilder und Fakten auf sich wirken.
Lächeln Sie immer noch?
Dann lassen Sie sich das Exposé mit ausführlichem Bildmaterial und weitere Unterlagen zusenden.
Im Anschluss vereinbaren wir gern einen Besichtigungstermin.
Wir freuen uns auf Sie!
Bei Abschluss eines Kaufvertrages wird eine Provision in Höhe von 3.570,00 € inkl. MwSt fällig.
Da wir Objektangaben nicht selbst ermitteln, übernehmen wir hierfür keine Gewähr.
Eine Weitergabe an Dritte ist an unsere ausdrückliche Zustimmung gebunden und unterbindet nicht unseren Provisionsanspruch bei Zustandekommen eines Vertrages. Alle Gespräche sind über unser Büro zu führen. Bei Zuwiderhandlung behalten wir uns Schadenersatz bis zur Höhe der Provisionsansprüche ausdrücklich vor. Zwischenverkauf ist nicht ausgeschlossen.
Ansprechpartner: Michele Albrecht
Auf der Suche nach Anlageobjekten? Weitere attraktive Immobilien zum Verkauf finden Sie auf unserer Homepage www.immosmile.me - immosmile, Ihr Immobilienmakler in Chemnitz.
Lächeln Sie immer noch?
Dann lassen Sie sich das Exposé mit ausführlichem Bildmaterial und weitere Unterlagen zusenden.
Im Anschluss vereinbaren wir gern einen Besichtigungstermin.
Wir freuen uns auf Sie!
Bei Abschluss eines Kaufvertrages wird eine Provision in Höhe von 3.570,00 € inkl. MwSt fällig.
Da wir Objektangaben nicht selbst ermitteln, übernehmen wir hierfür keine Gewähr.
Eine Weitergabe an Dritte ist an unsere ausdrückliche Zustimmung gebunden und unterbindet nicht unseren Provisionsanspruch bei Zustandekommen eines Vertrages. Alle Gespräche sind über unser Büro zu führen. Bei Zuwiderhandlung behalten wir uns Schadenersatz bis zur Höhe der Provisionsansprüche ausdrücklich vor. Zwischenverkauf ist nicht ausgeschlossen.
Ansprechpartner: Michele Albrecht
Auf der Suche nach Anlageobjekten? Weitere attraktive Immobilien zum Verkauf finden Sie auf unserer Homepage www.immosmile.me - immosmile, Ihr Immobilienmakler in Chemnitz.
Ihr Ansprechpartner:
immosmile.me
Telefon:
0371 444 789 75
E-Mail:
hello@immosmile.me